Leave a Message

By providing your contact information to Audra Stevens, your personal information will be processed in accordance with Audra Stevens's Privacy Policy. By checking the box(es) below, you consent to receive communications regarding your real estate inquiries and related marketing and promotional updates in the manner selected by you. For SMS text messages, message frequency varies. Message and data rates may apply. You may opt out of receiving further communications from Audra Stevens at any time. To opt out of receiving SMS text messages, reply STOP to unsubscribe.

Thank you for your message. We will be in touch with you shortly.

Explore Our Properties

Property Description

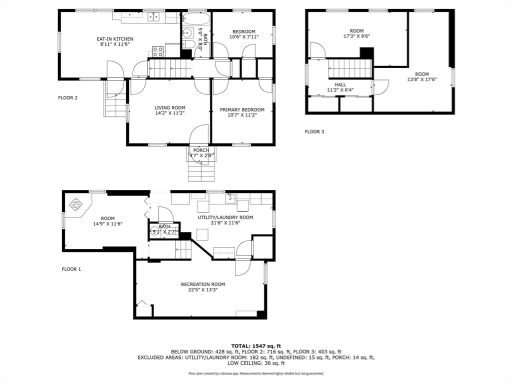
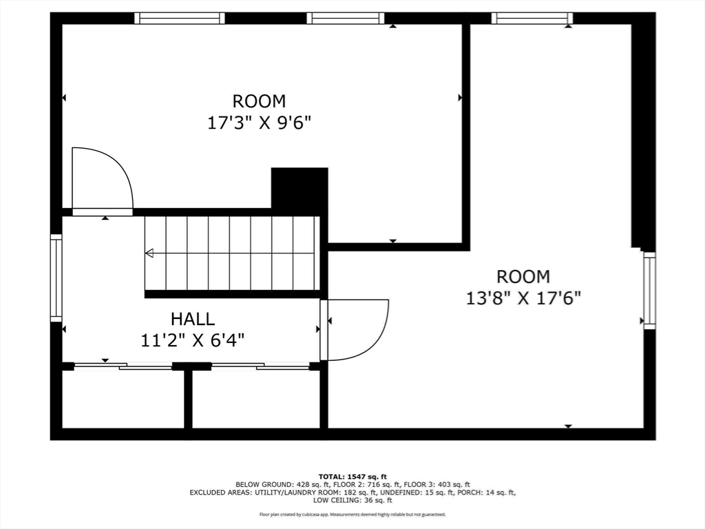
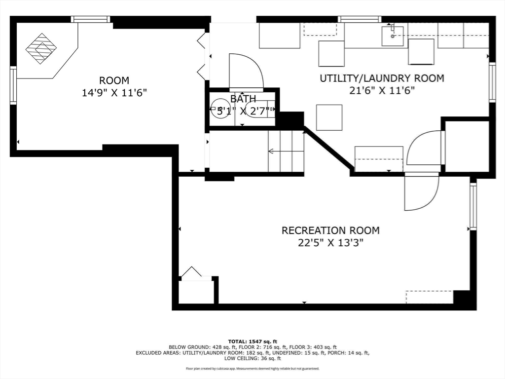
Back on Market due to buyer finance falling through is Your opportunity to own this lovingly maintained, freshly painted 4-bedroom, 1.5-bath home is located on a corner lot on an idyllic side street in a highly desired neighborhood. The first floor features a spacious, sunny, eat-in kitchen, bright living room and two first-floor bedrooms with refinished hardwood floors. Upstairs offers two spacious bedrooms with attic access for storage. The finished basement includes two bonus rooms ideal for home office, gym or playroom plus a laundry area and a walk-out to the patio. One car garage with a workshop area, two additional outdoor storage sheds, a good-sized backyard ready for your garden, and a patio with a pergola perfect for entertaining. Just a few doors from Abraham Lincoln Park, 1/2 mile to Ross Elementary. Minutes to I-93, Rt 3, the MBTA, shops & restaurants--a commuter's dream!

Overview

Property Status
Pending
Lot Size
6,800 Sq.Ft.
MLS ID
73386031
Property Type
Residential
Year Built
1940

Features & Amenities

Total Area
1,543 Sq.Ft.
Architecture Styles
Cape
Garage Spaces
1.0
Water Source
Public
Lot Features
Corner Lot
Parking
Garage Faces Side, Paved Drive, Paved
Heat Type
Steam, Oil
Air Conditioning
None
Appliances
Range, Dishwasher, Washer, Dryer
Sewer
Public Sewer
Substructure
Concrete Perimeter
Disability Features
No
Other Exterior Features
Patio, Garden
Elementary School
Ross
Middle School
East
High School
Braintree High
Sales Price
$639,000
Real Estate Tax
$5,720/yr
Zoning
B

Downloads

141 Hobart St

Schedule a Tour

We would love to help you see this beautiful home! As a full-service brokerage, we can help you tour. Please submit an offer, and answer questions about the buying process.

Enter a valid email

Thank you

for your interest in 141 Hobart St, Braintree, MA 02184

back to page
141 Hobart St
Navigate

Mortgage Calculator

Estimate your monthly mortgage payment, including the principal and interest, property taxes, and HOA. Adjust the values to generate a more accurate rate.
$0,000 Your Payment 20 15 65
$0,000 Your Payment

I'm Interested In

141 Hobart St

Follow Us On Instagram